Reportage vidéo EnBeauce.com
Une visite du futur Centre de services municipaux et communautaires de Beauceville
Plus de 200 personnes sont allées visiter, ce jeudi 5 mars, les installations du futur Centre de services municipaux et communautaires de la Ville de Beauceville.
Le but de cette activité était de permettre aux résidentes et aux résidents de visiter le bâtiment avant le début des travaux d'aménagement et de rénovation, et d'informer des grandes lignes et de la vision de l'organisation municipale sur ce centre situé au coeur de la communauté.
Rappelons que c'est en juillet 2024 que le bâtiment industriel, situé au 662 de la 9ᵉ Avenue, a été acheté au coût de 3,5 M$, du manufacturier en tissage industriel Duvaltex. Le premier critère qui a motivé l'acquisition de cette usine est qu'elle se trouve complètement en retrait de la zone inondable.
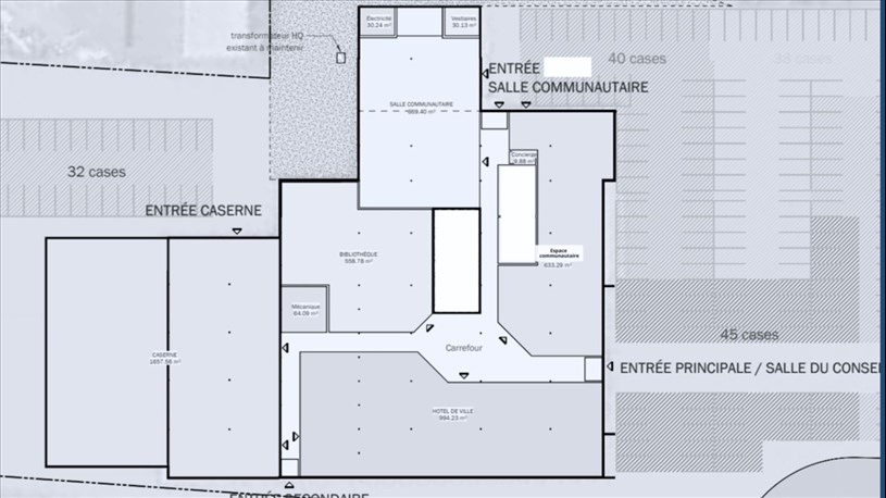
Beauceville doit aménager cet ancien édifice «de la Moore» afin d'y installer, sous un même toit, les principaux services municipaux et communautaires, notamment l’hôtel de ville, la bibliothèque Madeleine-Doyon, la caserne de sécurité incendie, une salle multifonctionnelle et des locaux et espaces pour accueillir divers organismes du milieu, comme le Comité d'aide de Beauceville et Le Murmure, pour ne nommer que ceux-ci.
EnBeauce.com s'est rendu sur place pour le faire tour du propriétaire en compagnie du maire de Beauceville, Patrick Mathieu, et de son directeur général, Serge Vallée.
Regardez le reportage vidéo de la visite des installations en cliquant sur la flèche de lecture sur la photo en début d'article.
Avec la collaboration de la journaliste Léa Arnaud.
À lire également
EnBeauce.com s'est rendu sur place pour le faire tour du propriétaire en compagnie du maire de Beauceville, Patrick Mathieu.
EnBeauce.com s'est rendu sur place pour le faire tour du propriétaire en compagnie du maire de Beauceville, Patrick Mathieu.
Trois scénarios possibles d'aménagement de l'atrium intérieur.
L'édifice sera divisé en cinq sections pour accueillir l’hôtel de ville, la bibliothèque Madeleine-Doyon, la caserne de sécurité incendie, une salle multifonctionnelle et des locaux et espaces pour les organismes du milieu.
Opération réussie pur le maire Patrick Mathieu, alors que plus de 200 personnes ont pris le temps de venir visiter les installations. «Le projet est bien accueilli par la population. En tout cas, c'est ce que les gens me disent.»

